桂北世纪城1期不锈钢扶手和栏杆邀请投标函
|
|||||||||||||||||
| 供应商: | |||||||||||||||||
| 现我公司对桂北世纪城一期所不锈钢栏杆和扶手进行邀请投标,具体情况如下表: | |||||||||||||||||
|
交货地点 |
广西桂林市全州县桂北世纪城工地 |
采购方式 |
甲指乙购 |
||||||||||||||
|
交货时间 |
以施工单位通知进场时间为准 |
询价时间 |
2014/10/28 |
||||||||||||||
|
需求数量 |
桂北世纪城一期共9栋,不锈钢扶手楼梯总长度约1000m,不锈钢靠墙扶手约1740m ,景观花园200mm高栏杆约4100m。 |
||||||||||||||||
|
报价要求 |
1、桂北世纪城不锈钢楼梯扶手、不锈钢靠墙扶手、景观花园200mm高不锈钢栏杆为甲指乙购工程,以下报价应为包含且不限于施工制作、安装、运输、水电(0.5%)、垂直运输费(不含配合费)、人工、配件、打孔、回补等费用的包干费用.用材必须符合我方提供的技术要求,要求的材料厚度。 2、付款方式:根据各栋施工进度要求进场安装,每栋全部施工完毕验收之前支付至每栋总额的60%,完成竣工验收并结算后支付至本栋总额的97%,3%质保金在质保期(一年)满并合同履行无争议的情况下二十四个工作日内无息返还(质保期从竣工验收之日起计算)。 3、报价文件递送要求:报价文件应由报价一览表和报价清单组成,报价一览表必须按我方格式填制,报价清单可根据贵单位情况进行扩充。请各报价单位在2014年11月7日14时30分前将报价文件(必须密封)递交到桂林全州县 桂林东舜置业有限公司采购部,联系人 :苏玉良 联系电话:07734828836。本司不统一组织探勘,如需踏勘或有技术疑问,请联系以上人员。 |
||||||||||||||||
|
报价一览表 |
|||||||||||||||||
|
序号 |
名称 |
规格 |
高度(mm) |
数量(m) |
综合单价(元/㎡) |
小计 |
备注 |
||||||||||
|
1 |
不锈钢楼梯栏杆 |
|
1100 |
1000 |
|
|
暂定数量 |
||||||||||
|
2 |
不锈钢楼梯靠墙扶手 |
|
|
1740 |
|
|
|||||||||||
|
|
景观花园200mm高栏杆 |
|
|
4100 |
|
|
|||||||||||
|
合计 |
|
|
|||||||||||||||
|
|
|||||||||||||||||
|
报价清单 |
|||||||||||||||||
|
主材清单 |
|||||||||||||||||
|
序号 |
|
材料名称 |
规格 |
材质 |
计量标准 |
单价(元/米) |
|
小计(元) |
|||||||||
|
1 |
|
扶手面管 |
|
|
每米 |
|
|
|
|||||||||
|
2 |
|
小横杆 |
|
|
每米 |
|
|
|
|||||||||
|
3 |
|
立管 |
|
|
每米 |
|
|
|
|||||||||
|
4 |
|
小竖管 |
|
|
每米 |
|
|||||||||||
|
主材总价 |
|||||||||||||||||
|
配件清单 |
|||||||||||||||||
|
序号 |
|
配件名称 |
规格 |
材质 |
计量标准 |
单价(元/㎡) |
总长度 |
小计(元) |
|||||||||
|
|
|
|
|
|
|
|
|
|
|||||||||
|
|
|
|
|
|
|
|
|
|
|||||||||
|
|
|
|
|
|
|
|
|
|
|||||||||
|
配件总价 |
|
||||||||||||||||
|
序号 |
|
费用名称 |
单价 (元/㎡) |
小计(元) |
|
|
|
|
|||||||||
|
|
|
制作安装费 |
|
|
|
|
|
|
|||||||||
|
|
|
|
|
|
|
|
|
|
|||||||||
|
其他费用总价 |
|
||||||||||||||||
|
合计综合单价 |
|
||||||||||||||||
上表报价单位可以扩展,每一种栏杆需填上表一份
| 不锈钢楼梯栏杆型号、规格 | ||||||||
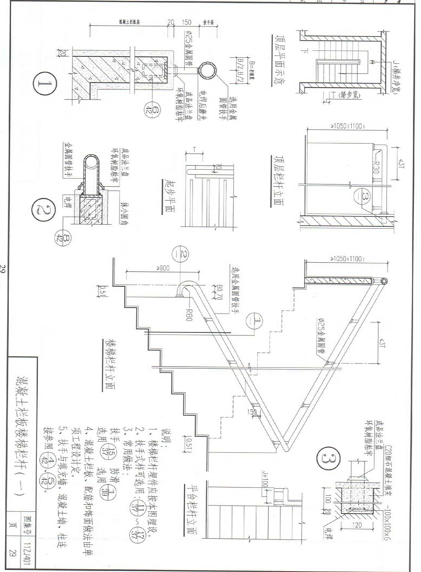
| 1、型材:不锈钢202型材,面扶手为¢60不锈钢圆管;主立柱¢50不锈钢圆管;横管¢25不锈钢管;竖管¢20不锈钢花管;管材使用非标管材(厚度分别为1.1mm,1.0mm,0.8mm,0.7mm,详细由报价单位列明)。 | ||||||||
|
2、样式:见具体图纸图集号11ZJ401/17(见附图一);
靠墙扶手见11ZJ401/36(附图二);
景观花园栏杆参照11ZJ401/29(见附图三) |
||||||||
- 上一篇:没有了
- 下一篇:没有了









